• Home
  • About us
  • Services
  • References
  • Modernisations
  • Current projects
  • Contact
English English en
Deutsch Deutsch de

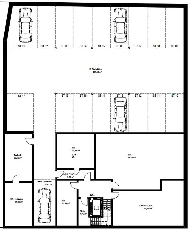
Gellert Apartment House

Button
Button
Button
Button
Button
Button
Button
Button
Button
View more

Address

IHZ Friedrichstr. 95, BF 84
10117 Berlin
Germany

Contact

Tel: 49 (0) 30 30 32 99 40
Fax: 49 (0) 30 30 32 99 41
E-mail:sekretariat@idb-International.com
www.idb-international.com|Imprint | Contact| Data protection
Share by: